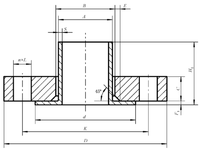
PN10翻边短节板式松套法兰的尺寸~GB/T 9124.1-2019
发布时间:2023-02-03 点击数:1006
PN10翻边短节板式松套法兰的尺寸~GB/T 9124.1-2019

| DN | 钢管外径 A/ mm |
连接尺寸 | 法兰 厚度 C/ mm |
法兰内径 B1/ mm |
翻边短节 | ||||||||||
| 法兰 外径 D/ mm |
螺栓孔中心圆直径 K/ mm |
螺栓孔直径 L/ mm |
螺栓 | d/ mm |
F1/ mm |
H2/ mm |
S/ mm |
||||||||
| 系列I | 系列II | 数量 n/个 |
螺纹 规格 |
系列I | 系列II | E/ mm |
|||||||||
| 10 | 17.2 | 14 | 90 | 60 | 14 | 4 | M12 | 14 | 21 | 18 | 3 | 40 | 2 | 35 | 2.0 |
| 15 | 21.3 | 18 | 95 | 65 | 14 | 4 | M12 | 14 | 25 | 22 | 3 | 45 | 2 | 38 | 2.0 |
| 20 | 26.9 | 25 | 105 | 75 | 14 | 4 | M12 | 16 | 31 | 29 | 4 | 58 | 2.5 | 40 | 2.6 |
| 25 | 33.7 | 32 | 115 | 85 | 14 | 4 | M12 | 16 | 38 | 36 | 4 | 68 | 2.5 | 40 | 2.6 |
| 32 | 42.4 | 38 | 140 | 100 | 18 | 4 | M16 | 18 | 47 | 42 | 5 | 78 | 3 | 42 | 3.2 |
| 40 | 48.3 | 45 | 150 | 110 | 18 | 4 | M16 | 18 | 53 | 50 | 5 | 88 | 3 | 45 | 3.2 |
| 50 | 60.3 | 57 | 165 | 125 | 18 | 4 | M16 | 20 | 65 | 62 | 5 | 102 | 3 | 45 | 3.2 |
| 65 | 73.0 | 76 | 185 | 145 | 18 | 8 | M16 | 20 | 78 | 81 | 6 | 122 | 3 | 45 | 3.2 |
| 80 | 88.9 | 89 | 200 | 160 | 18 | 8 | M16 | 20 | 94 | 94 | 6 | 138 | 3 | 50 | 3.2 |
| 100 | 114.3 | 108 | 220 | 180 | 18 | 8 | M16 | 22 | 120 | 114 | 6 | 158 | 4 | 52 | 3.2 |
| 125 | 139.7 | 133 | 250 | 210 | 18 | 8 | M16 | 22 | 147 | 139 | 6 | 188 | 4 | 55 | 3.2 |
| 150 | 168.3 | 159 | 285 | 240 | 22 | 8 | M20 | 24 | 174 | 165 | 6 | 212 | 4 | 55 | 3.2 |
| 200 | 219.1 | 219 | 340 | 295 | 22 | 8 | M20 | 24 | 226 | 226 | 6 | 268 | 5 | 62 | 3.2 |
| 250 | 273.0 | 273 | 395 | 350 | 22 | 12 | M20 | 26 | 281 | 281 | 8 | 320 | 8 | 68 | 3.2 |
| 300 | 323.9 | 325 | 445 | 400 | 22 | 12 | M20 | 26 | 333 | 333 | 8 | 370 | 8 | 68 | 3.2 |
| 350 | 355.6 | 377 | 505 | 460 | 22 | 16 | M20 | 30 | 365 | 386 | 8 | 430 | 8 | 68 | 3.2 |
| 400 | 406.4 | 426 | 565 | 515 | 26 | 16 | M24 | 32 | 416 | 436 | 8 | 482 | 8 | 72 | 3.2 |
注:公称尺寸DN10~DN150的法兰使用PN16法兰的尺寸。